Copyright 2008-2010 John Reagan Architects, Inc.
PATTERN OPTIONS:
Cypress
2,080 Square Feet
3 Bedroom - 2 1/2 Bath
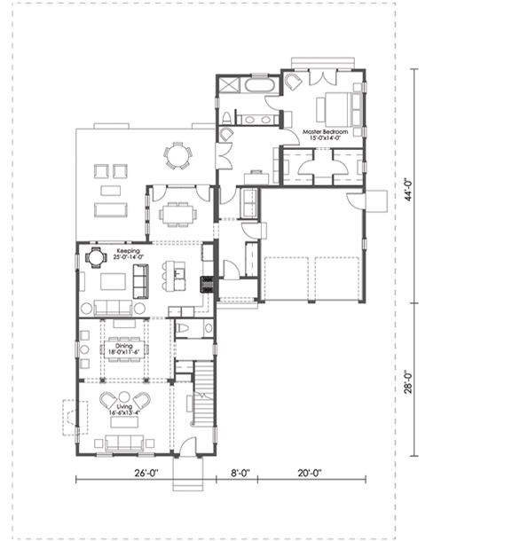
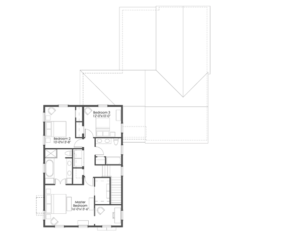
Cypress--Custom Options
Street Access Site with Master Down
2,970 Square Feet
4 Bedroom - 3 1/2 Bath
Alley Access Site with Master Down
3,230 Square Feet
4 Bedroom - 3 1/2 Bath
Ground Floor
Second Floor
Contact us
about use of these plans and custom design options.