Copyright 2008-2010 John Reagan Architects, Inc.

PATTERN OPTIONS:

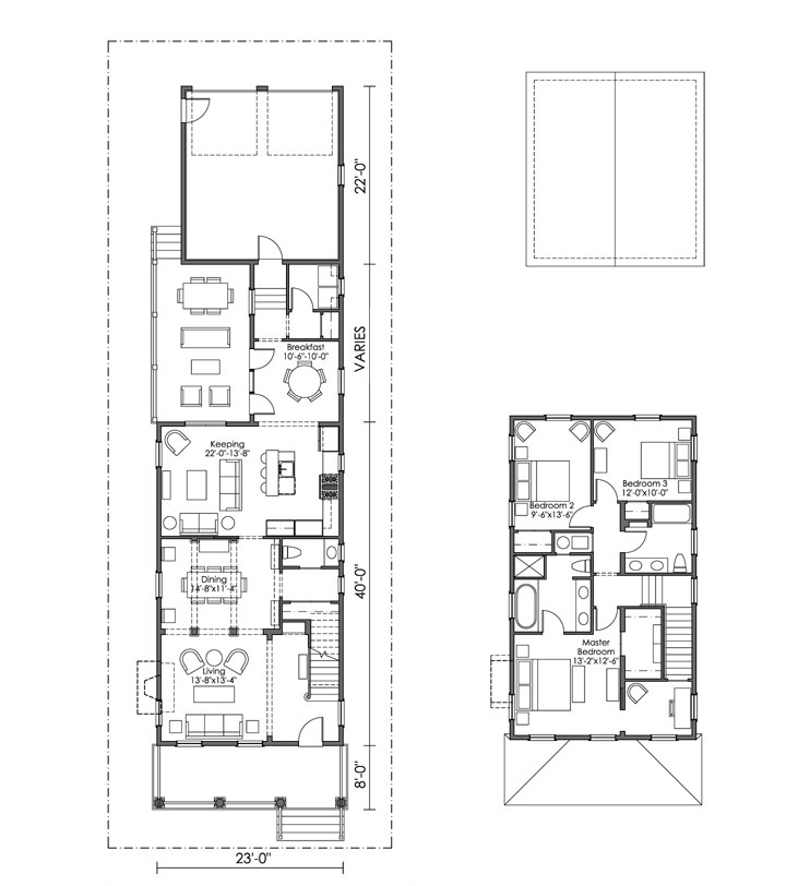
Cypress II
1,840 Square Feet
3 Bedroom - 2 1/2 Bath


Cypress II--Custom Options
  • Alley Access Site Breakfast/Laundry
    1,970 Square Feet
    3 Bedroom - 2 1/2 Bath


  • Street Access Site
    2,100 Square Feet
    3 Bedroom - 2 1/2 Bath









Ground and Second Floors

Contact us about use of these plans and custom design options.