Copyright 2008-2010 John Reagan Architects, Inc.
PATTERN OPTIONS:
Cypress II
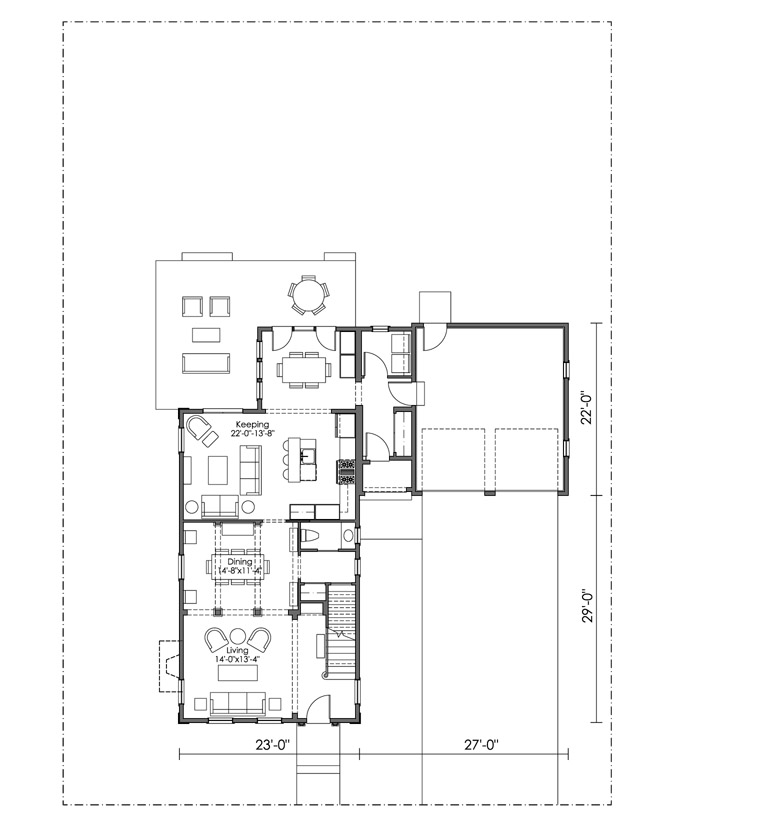
1,840 Square Feet
3 Bedroom - 2 1/2 Bath
Cypress--Custom Options
Alley Access Site Breakfast/Laundry
1,970 Square Feet
3 Bedroom - 2 1/2 Bath
Street Access Site
2,100 Square Feet
3 Bedroom - 2 1/2 Bath
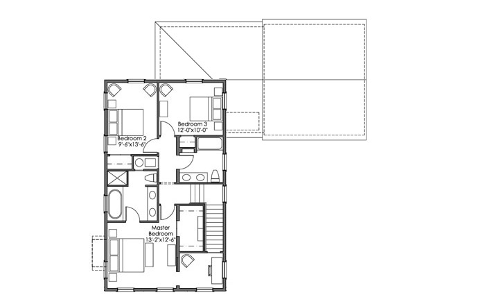
Ground Floor
Ground Floor
Contact us
about use of these plans and custom design options.