|
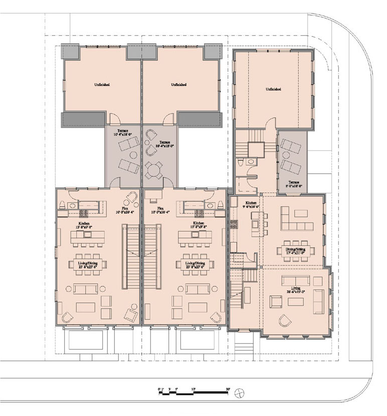
EAST BEACH LIVE WORK: Norfolk, Virginia Live Work units
17 units per acre
3,200 and 4,000 S.F. units
These Live-Work units are scaled to the residential community and face a public green. Each unit includes a Ground Floor commercial space and open loft living areas on the Second and Third Floors. |