|
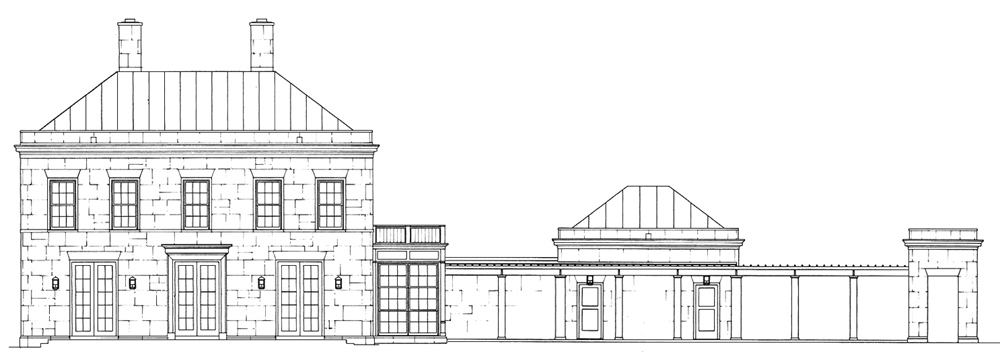
Residence in New Albany, Ohio This interpretation of a traditional American Country House references stone Federal homes built in Northern Ohio in the early to mid 1800's. Here, however, formal symmetries of the Federal Style are challenged and strict axial relationships are re-centered in order to address the complexities of the program and varying conditions of the site. The result is an assembly of pavilions connected by garden walls fronting the entry while enclosing the space beyond. |