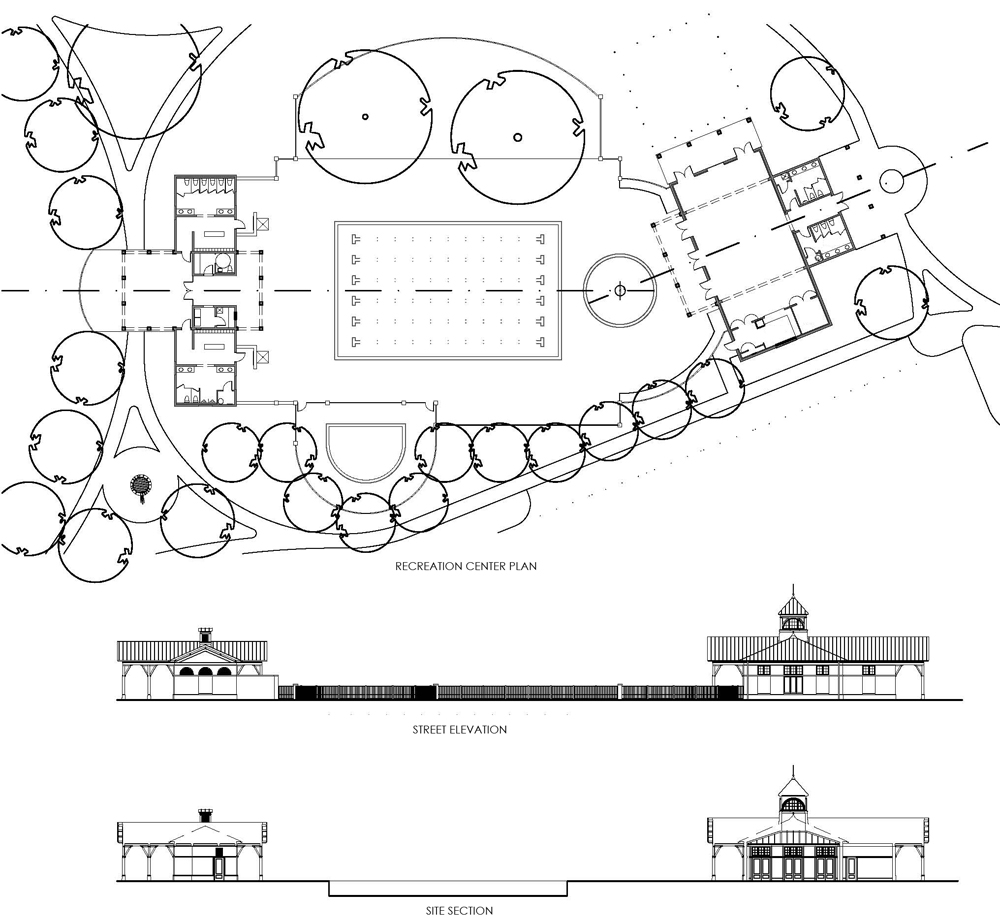
SPRING PARK: Celebration, Florida 
This 5 1/2 acre park located in the center of Celebration's South Village. The site has a natural spring and 100 year old live oak trees. The facility is comprised of a community building, a pool and poolhouse, and a large playing field with a stage. With David Skyles Architects and EDAW