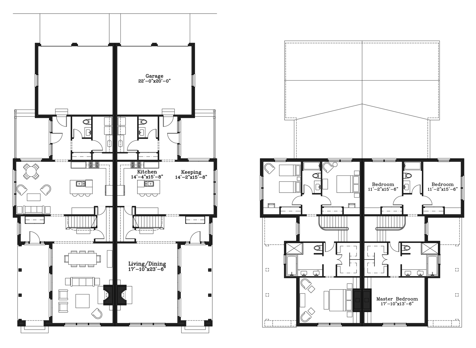
TUXEDO RESERVE: Tuxedo, New York
Townhomes and Carriage Houses within a planned community.
2,600 and 3,000 S.F. units

Ground Floor and Upper Level Master Suites. Two and three story units in a wooded setting.

   

Ground Floor                                        Second Floor